Omschrijving
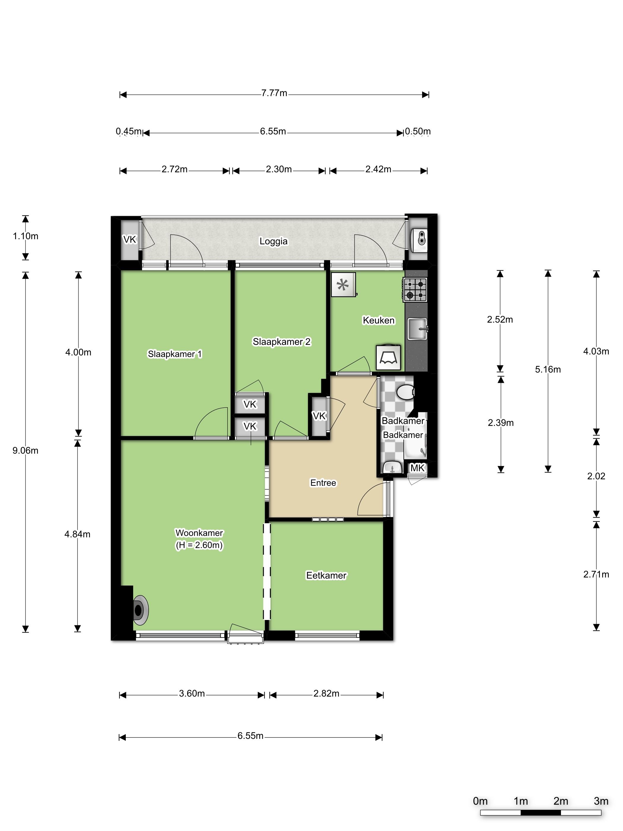
Op een rustige locatie, maar zeer centraal nabij het centrum, NS-station, kerk, scholen, winkels, supermarkten en ziekenhuis en omgeven door water en groen, ligt dit voormalige 3 -kamer appartement in een verzorgd complex met vrij uitzicht aan de voor- en achterzijde, moderne keukenruimte, inpandige badkamer en gevelbreed balkon aan de achterzijde. Bouwjaar ca. 1959. Inhoud ca. 198m3. Woonoppervlakte ca. 66m2. Externe bergruimte ca. 8m2. Gebouwgebonden buitenruimte ca. 8,5m2.Indeling appartement 2e verdieping: L-vormige entree/hal met plavuizen vloer, speels lichtinval door de glazen bouwstenen aan de eetkamer zijde en toog naar de woonkamer.Fraaie woonkamer ca. 17m2 voorzien van lichte wand- en plafondafwerking, laminaat vloerafwerking, moederhaard, vaste open kast en Frans balkon.Via brede toog in de woonkamer te bereiken eetkamer (voormalige 3e slaapkamer) ca. 7,6m2 met laminaat vloerafwerking, radiatorafwerking en inbouwspots.Ruime slaapkamer (1) ca. 11m2 voorzien van lichte laminaat vloerafwerking en lichte wand- en plafondafwerking. Vanuit de slaapkamer is het gevelbrede balkon te bereiken. Slaapkamer (2) ca. 9,2m2 met lichte laminaat vloerafwerking en vaste kast.Gesloten keukenruimte ca. 6m2 voorzien van moderne keukeninrichting (2013) met 4-pits rvs gaskookplaat, afzuigkap, spoelbak met design kraan, houten aanrechtblad, metro tegels, plavuizen vloer, inbouwspots en deur naar het balkon.Gevelbrede loggia voorzien van hardhouten vlonderdelen, balkonkast en kast met opstelling c.v. ketel. Inpandige badkamer ca. 2,4m2 voorzien van douchecabine, wastafelmeubel, spiegelkast, duoblok toilet en algeheel licht betegeld. Afmetingen: Woonkamer ca. 4.84×3.60m. Eetkamer ca. 2.82×2.71m. Slaapkamer (1) ca. 4.00×2.72m. Slaapkamer (2) ca. 4.00×2.30m. Keukenruimte ca. 2.52×2.42m. Balkon ca. 7.77×1.10m. Badkamer ca. 2.39×1.00m. Berging in de onderbouw ca. 3.60×1.90m. Algemeen: * bouwjaar ca. 1959, inhoud ca. 198m3, woonoppervlakte ca. 66m2, balkon ca. 8,5m2, externe bergruimte ca. 8m2; * het appartement heeft een eigen berging in de onderbouw; * de buitenzijde van het complex is recent gereinigd met hoge druk, opnieuw gevoegd en geschilderd in een moderne kleurstelling; * het appartement verkeert in een goede staat van onderhoud; * verwarming via moederhaard en warm water via centrale voorziening; * maandelijkse servicekosten bedragen € 140,-. Dit omvat o.a. reservering groot- en klein onderhoud, schoonmaak gemeenschappelijke ruimten, diverse verzekeringen, vergader- en bestuurskosten. Ook zit de OZB (onroerende zaak belasting) hierbij inbegrepen; * gelegen nabij groenvoorzieningen, winkelstrippen aan het Van Hogendorpplein en de Willem en Marialaan met een divers aanbod aan winkels voor de dagelijkse voorzieningen, scholen, kinderopvang, kerken etc.. Het NS-station en centrum van Gouda zijn eveneens snel en gemakkelijk te bereiken Servicekosten v.v.e € 165,- waarvan € 70,- word doorberekend naar de huurder. Maandhuur € 890,-













Goedeavond
Wij zijn zeer geïnteresseerd in deze woning. Ik Lindsay Schalker en Nikolaj den Hartog. Wij werken allebei fulltime en hebben een vaste aanstelling.
We wonen in Gouda, maar in een veelste kleine studio. Zijn al heel lang op zoek naar 2 slaap kamer appartement.
Groetjes Lindsay