In Gouda Noord gelegen goed onderhouden 3 (voorheen 4) kamer hoek appartement op de tweede verdieping met een gevelbreed balkon op het westen. Het appartement ligt in een kleinschalig complex met een afgesloten entree en eigen berging in de onderbouw in de directe nabijheid van het NS station, winkels en het centrum van Gouda.
– Bouwjaar ca. 1962
– Inhoud ca. 180 m3.
– Gebruiksoppervlakte wonen ca. 68 m2.
– Gebruiksoppervlakte overig balkon ca. 8 m2. + berging ca. 4 m2.
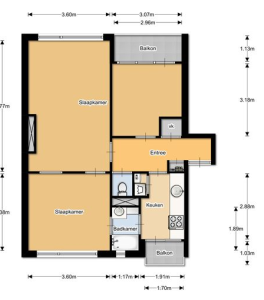
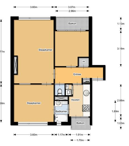
Indeling:
Afgesloten entree met bellenplateau, brievenbussen, trappenhuis en toegang tot de inpandige bergingen.
Tweede verdieping:
Entree/ruime hal met vaste kast en modern volledig licht betegeld toilet.
Royale woonkamer (voorheen 2 kamers) met een vaste kast, laminaatvloer en een Frans balkon aan de voorzijde.
Keuken met een modern licht keukenblok in hoekopstelling voorzien van diverse inbouw apparatuur: vaatwasser, koel-/vrieskast, gaskookplaat en een afzuigkap. Tevens bevinden zich hier de aansluitingen voor een wasmachine en droger en is het zonnige op het westen gelegen balkon vanuit de keuken bereikbaar.
2 slaapkamers, één kamer met een laminaatvloer en een vaste kast en één kamer met een laminaatvloer en een 2e toegang tot het balkon.
Moderne volledig licht betegelde badkamer met een ¼ ronde douchecabine, design radiator, wastafelmeubel en mechanische ventilatie.
Afmetingen:
Woonkamer ca. 6.46×4.88/2.72
Keuken ca. 2.51×2.50
Slaapkamer 1 ca. 4.00×2.75
Slaapkamer 2 ca. 4.00×2.31
Badkamer ca. 1.50×1.48
Balkon ca. 7.00×1.20
Inpandige berging ca. 3.50×1.90
Bijzonderheden
– Het appartement is geheel voorzien van dubbel glas.
– Moderne volledig licht betegelde badkamer.
– Verwarming middels een HR CV-combiketel.
– Leuk gelegen appartement met vrij uitzicht op groen en water aan voor- en achterzijde.
– Moderne keuken voorzien van diverse inbouw apparatuur.
– Huurprijs € 950,-
– Bijdrage vereniging ca € 195,-per maand, waarvan € 50 ,- doorgerekend word aan huurder
Maatvoering conform de NEN norm 2580.
Aan onvolkomenheden in deze presentatie kunnen geen aanspraken worden ontleend.



